Extension d’un appartement sur Le Taillan-Médoc .D
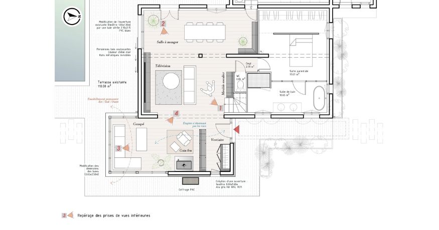
Ce projet porte sur la reconfiguration intérieure d’un séjour existant et la création d’une extension, avec pour objectif principal d’assurer une continuité architecturale fluide entre les volumes d’origine et le nouvel espace créé. L’enjeu consistait à intégrer l’extension de manière naturelle, afin que celle-ci s’inscrive dans la maison sans générer de rupture perceptible.
L’extension accueille un nouvel espace d’entrée intégrant des rangements fonctionnels. Un mobilier structurant vient organiser la transition entre l’entrée et la pièce de vie. Il joue sur un principe de transparence et de filtration visuelle, permettant de cloisonner légèrement les fonctions tout en conservant des perspectives ouvertes sur le séjour.
L’espace de vie dans l’extension s’organise autour de larges baies vitrées qui prolongent la pièce vers l’extérieur et apportent une luminosité naturelle généreuse tout au long de la journée. Cette relation directe avec le jardin favorise des ambiances variées et permet de profiter pleinement des moments de repos, de lecture ou de détente.
Au cœur de la composition, le poêle à bois participe à structurer l’espace et crée une atmosphère chaleureuse durant la saison hivernale. Il devient un point d’ancrage dans la pièce de vie, permettant de profiter de cet espace en toute saison, dans une ambiance conviviale et confortable.







