Rénovation appartement sur Bordeaux .O

« Faire le tour d’un meuble central, laisser les espaces dialoguer entre eux, à la manière d’un loft ».
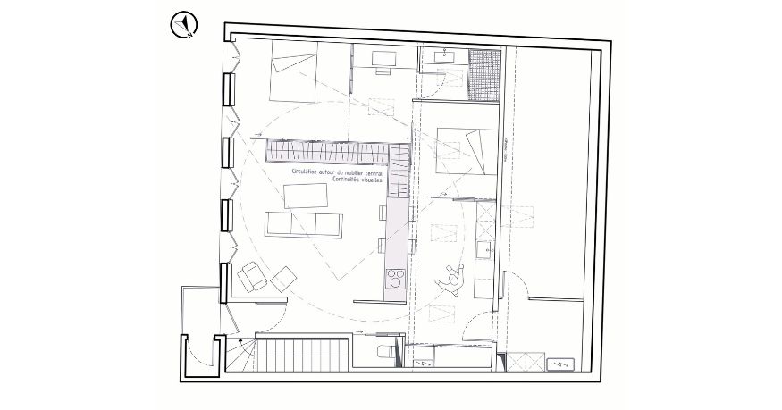
Ce projet de rénovation intégrale d’un appartement situé au cœur du quartier des Chartrons à Bordeaux a été l’occasion de réfléchir à un aménagement moins traditionnel des espaces : oublier les cloisons et travailler sur un plan libre.
Ce logement situé au dernier niveau de l’immeuble bénéficie d’une volumétrie intéressante, apportée par les rampants de la toiture. Les nombreuses fenêtres de toit existantes apportent de la lumière zénithale à tout moment de la journée.
Afin de conserver une sensation de grand espace ouvert, avec la charpente apparente, tout en incluant les éléments du programme, la réflexion s’est tournée vers un élément de mobilier central, qui ne brise pas complètement les vues et agit comme un séparateur de pièces.
Totalement désolidarisé des plafonds, le meuble et les aménagements autour de ce dernier n’interfèrent pas avec l’enveloppe, et la lumière circule librement entre chaque espace. Il peut être aménagé de différentes manières en fonction des pièces dans lequel il se trouve (paroi, rangement, support, table, étagères…).
À la manière d’un loft, des portes coulissantes et des verrières permettent de retrouver une intimité dans les chambres, mais aussi de conserver des continuités visuelles et des percements si ces dernières ne sont pas fermées.


