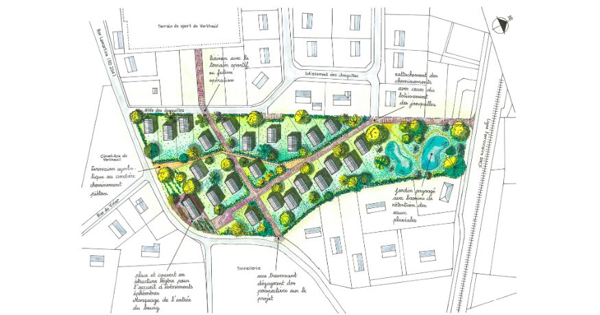
Aménagement d’un terrain sur Vertheuil
Cette esquisse concerne l’aménagement d’un terrain de plus de deux hectares dans la commune de Vertheuil (Médoc), en seize lots.
Le site, bordant la route principale de circulation et situé à l’entrée de la commune doit être vu, par sa position, comme un élément de transition entre un milieu rural et l’arrivée progressive vers le centre-ville de Vertheuil. Le projet marque donc un point d’entrée, un changement de contexte, et propose de petits espaces publics et paysagés dans l’esprit de la commune.
L’enjeu était de proposer un plan global qui dialogue directement avec les aménagements proches (le cimetière, le terrain de sport et les habitations existantes), tout en prenant en compte la forme et la grande superficie du terrain.
Le plan laisse apparaître un espace public au carrefour des voies créées, pouvant accueillir des événements organisés par la commune ou les habitants. Le dessin d’un bassin paysagé de rétention des eaux pluviales permet de proposer une alternative à la canalisation systématique des eaux de ruissellement. Cet élément améliore la qualité des espaces verts et favorise la biodiversité.





